BUSCANDO AGUA ENCONTRÉ UN JARDÍN

Intervención en la antigua embotelladora de Aguas de Lanjarón y en el Jardín de la Capuchina. Lanjarón. Granada.

RESUMEN DE LA MEMORIA:

1. La embotelladora y el jardín de la Capuchina.

La antigua planta embotelladora del Agua de Lanjarón, en desuso, rodeada de un frondoso jardín cuya belleza reside en la naturalidad con la que ha crecido, asomada al barranco del río Salado y al Parque Natural de Sierra Nevada es una discreta pieza de arqueología industrial ligada ya inevitablemente a todos los elementos que conforman su entorno.

Cuando un edificio entra en estado de abandono, y permanece así durante el tiempo suficiente, se esencializan sus características troncales y se diluyen las accesorias. En este caso resulta sencillo leer la huella de su actividad industrial y la lógica a la que respondían sus espacios. El hormigón desnudo de su estructura, la gran altura libre interior, las amplias luces entre pilares, en ocasiones dispuestos de forma irregular adaptados a la maquinaria allí alojada o los accesos a distintas cotas a través del jardín, conforman la realidad física de la que partimos.

Lo mismo ocurre en un espacio exterior tomado por la naturaleza, especialmente si se encuentra ligado al cese de una actividad que le daba sentido. Los espacios exteriores pueden entenderse como una prolongación de la organización del edificio, conectando sus distintos niveles ajardinados y albergando la preexistencia fundamental del lugar, el manantial y la fuente de la Capuchina. De este modo, la estructuración en paratas con abundante vegetación funciona como diafragma entre el manantial, la construcción y la fuente, permitiendo al paisaje natural introducirse en los límites de la parcela. La importancia de esta pragmática configuración del exterior es precisamente la capacidad de haber ligado indisolublemente todos sus elementos.

1.1 El agua y el jardín.
El proyecto propone partir del jardín para recuperar el edificio abandonado y que, a su vez, la introducción del balneario regenere los espacios exteriores del Jardín de la Capuchina. De esta forma, ahora que el edificio queda reconvertido en balneario-hotel, el jardín continúa organizando y articulando sus nuevos espacios y actividades y, simultáneamente, los diferentes tratamientos y experiencias ligadas al agua generan la atmósfera de tranquilidad y reposo pretendida.

En esta nueva lectura del lugar puede entenderse la relación entre jardín y Arquitectura como un viaje de ida y vuelta, una experiencia conjunta en la que descubrir que realmente no estamos en un jardín ni en un balneario, sino en un lugar intermedio.

1.2 Jardín medicinal.
La intención de procurar un tratamiento integral desde la llegada del huésped condiciona el tipo concreto de vegetación introducida en el edificio, cuyo papel va más allá de la estructuración del espacio interior, convirtiéndose en un jardín terapéutico de especies endémicas y haciendo uso de sus propiedades medicinales al igual que sucede con las aguas minerales.

Al mismo tiempo que el jardín forma parte de la experiencia terapéutica, mejora la condición sostenible del edificio. La vegetación es un sistema natural de regulación térmica que ayuda a la conservación de una temperatura constante y que actúa como tamiz de la luz natural generando un juego de luces y sombras.

2. Experiencias de agua en el balneario-hotel.

En la aproximación al edificio, ya es posible percibir la presencia del jardín, que acompaña el recorrido exterior e interior hacia la recepción del hotel, situada en el espacio central de la planta de acceso y separada de la zona perimetral de habitaciones por otro jardín que recorre verticalmente el edificio.

La arquitectura pretende desaparecer en una mínima intervención y se subordina por completo a las diferentes relaciones entre el visitante, el agua y el jardín. En el restaurante-mirador el agua se convierte en un espejo que refleja y acerca el paisaje lejano, en las habitaciones nos sumergiremos en un jardín privado y en el balneario se descubre un agua más profunda y oscura.

2.1 Habitaciones balneario.
Las cualidades de la habitación la convierten naturalmente en el centro de la estancia en el balneario y debe concebirse no solo como un espacio para dormir, sino como parte del tratamiento terapéutico integral.

La intimidad que proporciona el espacio interior de la habitación permite extender su uso convencional a otros que responden a la actividad terapéutica del edificio de forma más privada, al mismo tiempo que su apertura al paisaje exterior, junto con la introducción de un jardín medicinal, difumina los límites de la habitación. Esto se consigue mediante un jardín lateral que se prolonga hacia el interior desde la terraza, que cuenta con vegetación de menor porte y evita la interrupción visual con el paisaje lejano.

El baño adquiere gran importancia en la habitación, no solo en el interior, donde la ducha se introduce en el jardín lateral, sino también en el exterior, con un espacio de baño rodeado de plantas medicinales, en el que confluyen el aroma del jardín, la visión del parque natural y el sonido del agua de manantial que fluye en la bañera. La presencia de estas especies medicinales permite su uso como tratamientos complementarios a los del balneario mediante infusiones, inhalaciones o como parte de dietas o baños aromáticos.

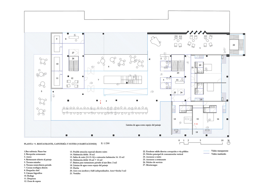
2.2 Restaurante mirador.
Desde la entrada se da acceso al restaurante situado en la planta superior, abierto a un paisaje más lejano y donde el perímetro del edificio integra la naturaleza existente reflejándola en una lámina de agua que difumina sus límites. Esta lámina de agua actúa bioclimáticamente, proporcionando un mayor aislamiento a las estancias inferiores al mismo tiempo que caracteriza toda la planta con su contribución paisajística.

Las hortalizas cultivadas en el huerto ecológico servidas en el restaurante forman parte del tratamiento integral del hotel-balneario, que proporciona asesoramiento médico y nutricional que complementa las terapias con las aguas.

2.3 Balneario Jardín.
El asesoramiento médico se proporciona en el nivel intermedio entre la planta de acceso y el inferior, donde se sitúa el balneario. Las consultas están situadas en la zona central de la planta, conectadas visualmente desde su sala de espera con el paisaje a través de una terraza pública ajardinada que introduce luz natural. Separan además la zona de habitaciones del recorrido interior ajardinado que conserva la conexión original del edificio a ambos lados con el exterior para crear un circuito con equipamiento deportivo.

La mayor parte de tratamientos específicos con aguas recomendados en las consultas se realizan en el balneario. Este nivel se relaciona directamente con el jardín, que se introduce a través del emparrado exterior siguiendo el ritmo marcado por la estructura de pilares del espacio principal del balneario, donde ambos confluyen. Esta planta mantiene el carácter industrial original del edificio valiéndose de sus cualidades y concentrando en la zona central los usos colectivos con espacios más amplios que se conectan visualmente con el exterior. La posición, la dimensión, la relación con el jardín exterior o las condiciones de luz natural de cada espacio en esta planta, complementan la experiencia de cada tratamiento, optimizando los parámetros necesarios para cada terapia. Por ejemplo, la apertura hacia el jardín de la zona de yoga o de las bañeras individuales, contrasta con la intimidad de las cabinas de masaje o la zona de flotarium.

2.4 Jardín en sombra y piscina mirador.
Un emparrado se extiende hacia el exterior para crear un espacio de transición bajo el que se producen diversas actividades al aire libre como parte de los tratamientos del balneario y que conduce hacia la zona de la piscina-mirador, que vuela sobre la ruina industrial colonizada por la vegetación y entre los árboles. En esta piscina se podrá disfrutar del sonido del Salado desde una posición privilegiada.

Un nuevo recorrido conecta este jardín en sombra con el nivel inferior del jardín, donde se sitúa el huerto ecológico. Este huerto, forma parte de una serie de mínimas intervenciones realizadas en el jardín preexistente como parte de su nuevo uso, así como la recuperación de las infraestructuras de agua originales o la integración de una cocina exterior como parte de la experiencia gastronómica.

2.5 El Manantial.
La rehabilitación del edificio y la nueva actividad del jardín conviven con el uso tradicional del manantial de la Capuchina y su fuente, que queda integrada en la experiencia del balneario como un elemento singular del huerto y siendo parte de los recorridos exteriores.

Proponemos una nueva envolvente formada por tubos de borosilicato que permite disfrutar de una experiencia más sensorial, ya que proporciona una visión diluida del paisaje exterior durante el paseo hasta el momento de beber el agua.

Agua y jardín, de forma conjunta, forman parte del tratamiento terapéutico del huésped y crean la experiencia integral y única de este lugar, proporcionando esa sensación de bienestar total y estando presentes en cada momento de la estancia en el hotel-balneario.



¿Hablamos de tu proyecto?

¿Tienes una idea en mente? Estamos aquí para ayudarte a darle forma. Escríbenos y hablaremos sobre cómo convertir tu espacio en algo único y pensado para ti.

imagen detalle de una maqueta de arquitectura-Serrano + Baquero-Estudio de arquitectura

Visítanos
C\Buensuceso n.21 Bajo CP:18002 Granada. España

Teléfono
+34 669848204

Correo electronico
estudio@serranoybaquero.com

logo-login
Resumen de privacidad

Esta web utiliza cookies para que podamos ofrecerte la mejor experiencia de usuario posible. La información de las cookies se almacena en tu navegador y realiza funciones tales como reconocerte cuando vuelves a nuestra web o ayudar a nuestro equipo a comprender qué secciones de la web encuentras más interesantes y útiles.