CASA EDU

Casa mínima Calle del Roble. Jaén.

MEMORIA RESUMEN:
1. El encargo.

Eduardo es un amigo que en la primavera de 2015 decidió mudarse a un piso de Jaén. Comenzó a buscar diversas opciones dentro de su presupuesto, aunque ninguna cumplía totalmente sus necesidades. Eduardo es un amante de los coches y dedica la mayor parte de su tiempo libre a reparar vehículos antiguos; este hecho requería que su nueva vivienda dispusiera de un espacio para poder realizar estas actividades. Las opciones que barajaba podían ofrecerle como mucho una plaza de parking bajo el edificio, lo que no era el lugar idóneo para establecer su taller.

Durante el verano de ese mismo año, en una conversación en la playa, nos puso en conocimiento de esta problemática y decidimos ayudarle a, con el mismo presupuesto que iba a dedicar a la compra del piso, realizar una casa que diera respuesta a sus necesidades y albergara un taller de reparación de coches.

2. La casa sencilla.

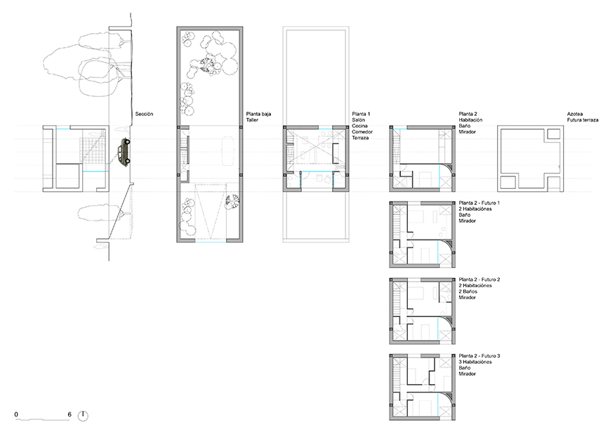
Eduardo encontró un profundo solar de 7.50m por 24.50m, entre medianeras y a las afueras de Jaén, que cumplía sus expectativas a pesar de ser caro, por lo que la realización del proyecto se convirtió en un ejercicio de mínimos.

La casa es un cubo de 7.50m de lado que se dispone descentrado y elevado para liberar toda la planta baja de modo que el taller se encuentre en una posición entre el jardín de acceso y el jardín trasero, con total continuidad visual entre ambos espacios libres. Debido al reducido presupuesto se plantea una casa compacta, de materiales austeros y que alberga un vacío en su interior para su posterior ampliación. Se disponen una serie de aperturas en el volumen que responden a las vistas hacia la Alcazaba y a la introducción de la luz natural en la casa.

Pensamos que con pocos medios, pero estudiando tanto la disposición de los elementos como la posibilidad de futuras ampliaciones, se puede establecer una casa más que digna, en la que disfrutar del paisaje, del paso del tiempo y que sirva de lienzo donde establecer una nueva vida. La escasez de medios, en determinados casos como este, no resulta un impedimento sino una ventaja a la hora de pensar la arquitectura.

Finalmente el dueño del solar no llegó a un acuerdo con Eduardo y lo vendió a una tercera persona por un precio más elevado.

¿Hablamos de tu proyecto?

¿Tienes una idea en mente? Estamos aquí para ayudarte a darle forma. Escríbenos y hablaremos sobre cómo convertir tu espacio en algo único y pensado para ti.

imagen detalle de una maqueta de arquitectura-Serrano + Baquero-Estudio de arquitectura

Visítanos
C\Buensuceso n.21 Bajo CP:18002 Granada. España

Teléfono
+34 669848204

Correo electronico
estudio@serranoybaquero.com

logo-login
Resumen de privacidad

Esta web utiliza cookies para que podamos ofrecerte la mejor experiencia de usuario posible. La información de las cookies se almacena en tu navegador y realiza funciones tales como reconocerte cuando vuelves a nuestra web o ayudar a nuestro equipo a comprender qué secciones de la web encuentras más interesantes y útiles.